|
|
作者:合庆生活
克日,《D05B-03地块配套幼儿园新建工程初步设想概算的请示》,该项目工程可行性研讨报告获批复,新建修建面积9645平方米,总投资6695.86万元。所需扶植资金依照“城中村”革新配套项目扶植机制放置。
终极考核批复以下:
概算总投资为6608.24万元,其中:建安费5587.77万元,其他费705.79万元,预备费314.68万元。所需扶植资金依照“城中村”革新配套项目扶植机制放置。建成以后,资产移交区教育部分。
扶植工程称号
D05B-03地块配套幼儿园新建工程
扶植单元
上海国际旅游度假区川沙开辟扶植有限公司
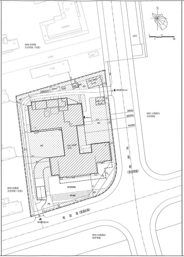
扶植用地范围
东至丹霞路(原远明路)
南至皓韵路(原浦运路)
西至D05B-02地块
北至D05B-02地块

公示图

扶植用地性质
根本教育设备用地
扶植工程性质
计划称号:《浦东新区川沙新市镇城东社区(“十二五保障房”)控制性具体计划调剂》
地块编号
| 用地性质
| 容积率
| 控制高度
| D05B-03
| 根本教育设备用地
| 1.00
| 15米
|
扶植内容
本项目由1栋幼儿园(含地下车库)、1栋渣滓房、1栋门卫以及1栋变电所共4个单体修建组成。
首要经济技术目标
用空中积:7346.60㎡
总修建面积:9527.87㎡
其中
地上修建面积:6705.68㎡
地下修建面积:2822.19㎡
容积率:0.90
修建密度:30%
绿地率:35%
 |
|